Objektart
Adresse
Objektdaten
Informationen
Ausstattung
Details
Bestlage von Rennerod Stadt ! Hier haben Sie die Gelegenheit stadtnah und sehr ruhig zu wohnen.
Ein Wohnhaus mit viel Platz im und ums Haus in TOP Lage. Ab 2009 wurde einiges erneuert wie Bäder, Böden, Decken, Küche, alle Zimmer, Pellet - Heizung, Fenster und und . Die Hauseingangstür und das Garagentor sind neu. Hier treffen Sie auf ein Haus aus 1965 mit einem gewissen Charme und Charakter.
Raumaufteilung:
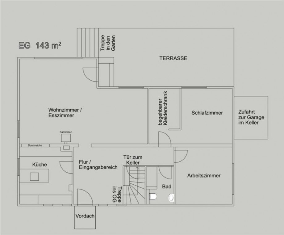
Erdgeschoss:
großzügiges Wohn -Esszimmer mit Ausgang auf die Terrasse, Wohnküche, Schlafzimmer mit begehbarem Kleiderschrank, Zimmer, Badezimmer mit Dusche
Obergeschoss:
2 schöne Wohnräume, großer Flur der auch als Büro oder Spielzimmer zu nutzen ist, Badezimmer mit Wanne
Keller:
Kellerräume, Heizungsraum, Vorratsraum, große Garage
Das Anwesen ist in Holzständerbauweise errichtet. Befeuert wird mit einer Pelletheizung inkl. einem Pellettank für ca. 4-5 Tonnen, der Kaminofen für Holzstückgut ist an die Heizung angeschlossen, sowie eine Solaranlage für die Warmwasserunterstützung.
Ein schönes Haus in ruhiger Lage mit einem tollen, großen Grundstück, ideal auch für die größere Familie mit mehreren Kindern!
Kunststofffenster weiß, Holzfenster, Pelletheizung, Kaminofen, Solaranlage
Das Haus liegt in 56477 Rennerod Stadt, Rennerod ist auch der Standort der Verbandsgemeinde. Rennerod liegt im idyllisch im Herzen vom Westerwald, die City erreichen Sie fußläufig, wie auch Kindergarten, Grundschule und die Realschule Plus. In Rennerod finden Sie fast alle Einkaufsmöglichkeiten, Ärzte, Apotheke, Bäcker, Zahnarzt, Kindergärten, Realschule Plus und eine Grundschule. Die Kleinstädte Bad Marienberg und Westerburg erreichen Sie auch in wenigen Minuten. Alle Städte bieten Ihnen verschiedene Einkaufsmöglichkeiten des täglichen Bedarfs, unterschiedliche Einzelhandelsgeschäfte, Supermärkte, Ärzte und Apotheken, ein Krankenhaus, Banken sowie Restaurants, Gaststätten, Hotels, Pensionen und Ferienwohnungen. Ein Gymnasium gibt es in Bad Marienberg und Westerburg, Realschule Plus gibt es in Rennerod und Westerburg, mit guten Busverbindungen. In Westerburg gibt es zudem eine Berufsbildende Schule. Zudem bieten Westerburg, Rennerod und Bad Marienberg Ihnen ein vielfältiges Freizeit- und Kulturangebot wie z.B. das Marienbad in Bad Marienberg. Viele erfolgreiche Unternehmen stehen Ihnen mit zahlreichen Arbeitsplätzen zur Verfügung. Westerburg, Rennerod und Bad Marienberg ist gut an das überregionale Straßennetz angeschlossen. Sie können die A 3 und die A 45 in kurzer Zeit erreichen. In Westerburg selbst befindet sich ein Bahnhof mit zahlreichen Bahnverbindung.
Die in unserem Exposé enthaltenen Aussagen basieren auf Informationen, die uns vom Verkäufer zur Verfügung gestellt wurden. Wir übernehmen keine Gewähr für die Vollständigkeit und Richtigkeit der Angaben. Das Immobilienangebot ist freibleibend. Irrtum und Zwischenverkauf bleiben vorbehalten.
Weitere Details zum Objekt erläutern wir Ihnen gerne bei einem persönlichen Besichtigungstermin.
Wir bitten um Ihr Verständnis, dass wir nur Anfragen mit vollständigen Adressdaten inklusive Vor-und Zuname, Anschrift, Telefon-/Mobilnummer und E-Mail Adresse bearbeiten können.
Eine Versendung von Unterlagen an anonyme Interessenten ist von den Eigentümern nicht gewünscht.
Wir arbeiten in Kooperation mit einem sehr seriösen Finanzierungsvermittler, er erstellt Ihnen unverbindlich und kostenlos Ihr passendes Finanzierungsangebot.
Sie möchten Ihre Immobilie verkaufen? Wir erstellen Ihnen für die Immobilie eine kostenlose Wertanalyse und entwickeln eine auf Ihr Haus angepasstes Vermarktungskonzept um einen bestmöglichen Verkaufspreis zu erzielen.
Interessiert? Wir freuen uns auf Ihre Anfrage oder Anruf!
Ansprechpartner
Telefax: +49 2661 949476
Mobil: +49 171 1990422
info@immodo24.com
Energieausweis (Bedarfsausweis)
151,55 kWh / (m²*a) Endenergiebedarf
151,55 kWh / (m²*a) Endenergiebedarf
151,55 kWh / (m²*a) Endenergiebedarf
Weitere Informationen
| Wesentlicher Energieträger | Holz,Pellets |
| Energieausweis Ausstelldatum | 2025-06-27 |
| Energieausweis gültig bis | 27.06.2035 00:00:00 |
| Energieausweis Jahrgang | ab dem 1.5.2014 |
| Energieausweis Werteklasse | E |
| Energieausweis Baujahr | 1965 |
| Energieausweis Gebäudeart | Wohngebäude |
| Heizung | Zentralheizung |
| Befeuerung | Pellet, Holz und Hackschnitzel |
