Wissen OT, Nähe Hamm!Wohnhaus mit Stil, vieles erneuert, Gargenhaus, zentrale Lage!
Objektart
Adresse
Objektdaten
Informationen
Ausstattung
Details
Ein Wohnhaus mit Stil und Charme, zentral gelegen an der B 62 in Wissen Roth!
In 1897 in massiver Bauweise, Stein auf Stein erbaut. Im Jahr ca. 1950 wurde das Objekt erweitert, ab 2009 wurde hier vieles saniert und es entstand ein Schmuckstück.
Überzeugen Sie sich selbst, ein Schmuckstück und eine Wohlfühloase. in 2023 wurden Schallschutzfenster eingebaut, die Heizung ist aus 2003, Elektrik wurde überarbeitet, Wasserleitungen ebenso.
Das Angebot rundet die großzügige Doppelgarage (je nachdem Platz für bis zu drei Autos) und eine Garage befindet sich im Haus, ein kleines Wiesengrundstück gehört ebenso dazu.
Raumaufteilung:
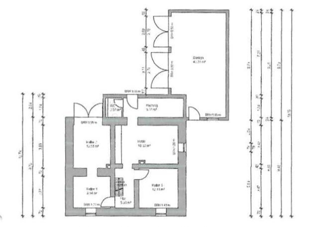
Erdgeschoss:
3 Zimmer, Badezimmer, Küche
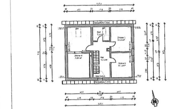
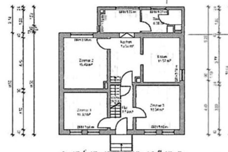
Obergeschoss:
3 Zimmer, Badezimmer
Ein ideales Haus für eine Familie, hier heisst es mit wenig Aufwand einziehen und wohlfühlen.
Ölzentralheizung, Fenster Kunststofffenster, Front nach vorne Schallschutz aus 2023, von innen alles verputzt, Elektrik überarbeitet,
Zentrale Wohnlage !
Das Haus befindet sich in Roth an der B62, damit besteht eine gute Verkehrsanbindung . Im Ort gibt es einen Kindergarten, Schulen sowie die übrigen Dinge des täglichen Bedarfs finden Sie im nur ca. 3 KM entfernten Hamm Sieg. Der Regio Bahnhof in Wissen, nur ca. 2,5 km entfernt, bietet Zugverbindungen nach Köln und Siegen, daher für Pendler auch interessant.
Entfernungen: Wissen ca 6,5 km, Hamm/Sieg ca. 2 km, Altenkirchen ca 12 km
Die Autobahn A45, Autobahnauffahrt Freudenberg erreichen Sie in ca. 25 Km oder A3 Neustadt Wied ca. 27 km!
Die in unserem Exposé enthaltenen Aussagen basieren auf Informationen, die uns vom Verkäufer zur Verfügung gestellt wurden. Wir übernehmen keine Gewähr für die Vollständigkeit und Richtigkeit der Angaben. Das Immobilienangebot ist freibleibend. Irrtum und Zwischenverkauf bleiben vorbehalten.
Weitere Details zum Objekt erläutern wir Ihnen gerne bei einem persönlichen Besichtigungstermin.
Wir bitten um Ihr Verständnis, dass wir nur Anfragen mit vollständigen Adressdaten inklusive Vor-und Zuname, Anschrift, Telefon-/Mobilnummer und E-Mail Adresse bearbeiten können.
Eine Versendung von Unterlagen an anonyme Interessenten ist von den Eigentümern nicht gewünscht.
Wir arbeiten in Kooperation mit einem sehr seriösen Finanzierungsvermittler, er erstellt Ihnen unverbindlich und kostenlos Ihr passendes Finanzierungsangebot.
Sie möchten Ihre Immobilie verkaufen? Wir erstellen Ihnen für die Immobilie eine kostenlose Wertanalyse und entwickeln eine auf Ihr Haus angepasstes Vermarktungskonzept um einen bestmöglichen Verkaufspreis zu erzielen.
Interessiert? Wir freuen uns auf Ihre Anfrage oder Anruf!
Ansprechpartner
Telefax: +49 2661 949476
Mobil: +49 171 1990422
info@immodo24.com
Energieausweis (Bedarfsausweis)
150,60 kWh / (m²*a) Endenergiebedarf
150,60 kWh / (m²*a) Endenergiebedarf
150,60 kWh / (m²*a) Endenergiebedarf
Weitere Informationen
| Wesentlicher Energieträger | Öl |
| Energieausweis Ausstelldatum | 2016-07-05 |
| Energieausweis gültig bis | 05.07.2026 00:00:00 |
| Energieausweis Jahrgang | ab dem 1.5.2014 |
| Energieausweis Werteklasse | E |
| Energieausweis Baujahr | 1890 |
| Energieausweis Gebäudeart | Wohngebäude |
| Heizung | Zentralheizung |
| Befeuerung | Öl |
