Ransbach-Baumbach Toplage! Großes 1 bis 2 Familienhaus, Garten, Garage, Carport!
Objektart
Adresse
Objektdaten
Informationen
Ausstattung
Details
Großes Ein - bis Zweifamilienhaus in Toplage von Ransbach - Baumbach inkl. Garten, Garage, Carport und möglicher Einliegerwohnung im Obergeschoss!
Wohnen wo andere Urlaub machen ist hier die Devise, das Haus steht Nahe am Ortsrand in direkter Nähe zu Wald und Wiese. Wer die Ruhe sucht und mag ist hier genau richtig!
Es handelt sich hier um ein Holzblockhaus welches in 1972 erbaut wurde und im Jahr 2007/08 um ein weiteres Stockwerk erweitert wurde bzw. aufgestockt wurde.
Eine Garage mit Grube und ein Carport runden das Angebot ab, das Grundstück ist so gut wie uneinsehbar und eingezäunt-
Neue Fenster, neue Heizung, neues Dach, neue Elektor, neue Wasserleitungen und und und .
Ein zusätzlicher Kaminofen steht Ihnen im Wohn - Eßzimmer bereit.
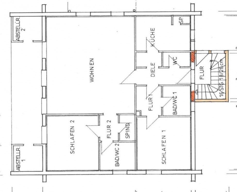
Raumaufteilung:
Erdgeschoss:
Küche, großes Wohn -Esszimmer mit Ausgang in den Garten, 2 Zimmer, Gäste WC (mit der Möglichkeit für eine Dusche), Badezimmer, Flur
Obergeschoss:
2 Zimmer davon 1 Zimmer mit Ausgang auf den neu errichteten Balkon, Küche, Badezimmer und ein großer Abstellraum
Das Objekt ist baulich in einem guten Zustand!
Sie erreichen fußläufig den bekannten und beliebten Erlenhofsee, ein schönes Naherholungsgebiet welches für tolle Wanderungen und Erholungen einlädt.
Gaszentralheizung von Bosch aus 2020, Bäder aus 2008, Fenster erneuert, Dach erneuert, großer Balkon im Obergeschoss erneuert, Garage, Carport, Garagen.
Das Haus liegt in Ransbach - Baumbach, einer logistisch sehr beliebten Stadt! Ransbach - Baumbach ist gleichzeitig auch die Verbandsgemeinde. Die Innenstadt Ransbach-Baumbach kann fußläufig erreicht werden, Montabaur, Selters und Mogendorf sind in wenigen Minuten mit dem Auto zu erreichen. Sie bieten verschiedene Einkaufsmöglichkeiten des täglichen Bedarfs, unterschiedliche Einzelhandelsgeschäfte, Supermärkte, Ärzte und Apotheken, ein Krankenhaus, Banken sowie Restaurants, Gaststätten, Hotels, Pensionen und Ferienwohnungen.
Ransbach - Baumbach bietet Ihnen vier Kindergärten, eine Realschule Plus und eine Grundschule. Die weiterführenden Schulen wie Gymnasien oder Berufsbildende Schulen befinden sich in Montabaur.
Viele erfolgreiche Unternehmen stehen Ihnen mit zahlreichen Arbeitsplätzen zur Verfügung. Selters ist gut an das überregionale Straßennetz angeschlossen.
Ransbach - Baumbach hat einen eigenen Autobahnanschluss an die A3 (Anschlußstelle Ransbach Baumbach).
Die nächsten Bahnhöfe sind in Siershahn und Dernbach, der nächste ICE Bahnanschluß ist in Montabaur.
Die in unserem Exposé enthaltenen Aussagen basieren auf Informationen, die uns vom Verkäufer zur Verfügung gestellt wurden. Wir übernehmen keine Gewähr für die Vollständigkeit und Richtigkeit der Angaben. Das Immobilienangebot ist freibleibend. Irrtum und Zwischenverkauf bleiben vorbehalten.
Weitere Details zum Objekt erläutern wir Ihnen gerne bei einem persönlichen Besichtigungstermin.
Wir bitten um Ihr Verständnis, dass wir nur Anfragen mit vollständigen Adressdaten inklusive Vor-und Zuname, Anschrift, Telefon-/Mobilnummer und E-Mail Adresse bearbeiten können.
Eine Versendung von Unterlagen an anonyme Interessenten ist von den Eigentümern nicht gewünscht.
Wir arbeiten in Kooperation mit einem sehr seriösen Finanzierungsvermittler, er erstellt Ihnen unverbindlich und kostenlos Ihr passendes Finanzierungsangebot.
Sie möchten Ihre Immobilie verkaufen? Wir erstellen Ihnen für die Immobilie eine kostenlose Wertanalyse und entwickeln eine auf Ihr Haus angepasstes Vermarktungskonzept um einen bestmöglichen Verkaufspreis zu erzielen.
Interessiert? Wir freuen uns auf Ihre Anfrage oder Anruf!
Ansprechpartner
Telefax: +49 2661 949476
Mobil: +49 171 1990422
info@immodo24.com
Energieausweis (Bedarfsausweis)
156,33 kWh / (m²*a) Endenergiebedarf
156,33 kWh / (m²*a) Endenergiebedarf
156,33 kWh / (m²*a) Endenergiebedarf
Weitere Informationen
| Wesentlicher Energieträger | Gas,Holz |
| Energieausweis Ausstelldatum | 2025-06-04 |
| Energieausweis gültig bis | 04.06.2035 00:00:00 |
| Energieausweis Jahrgang | ab dem 1.5.2014 |
| Energieausweis Werteklasse | E |
| Energieausweis Baujahr | 2008 |
| Energieausweis Gebäudeart | Wohngebäude |
| Heizung | Zentralheizung |
| Befeuerung | Gas, Holz und Hackschnitzel |
